Thorntrees

Hillside living with goats and style.

2018
Private Residential
Sustainability

Five acres of freedom with architecture that lets you live large while keeping life simple.

Overview

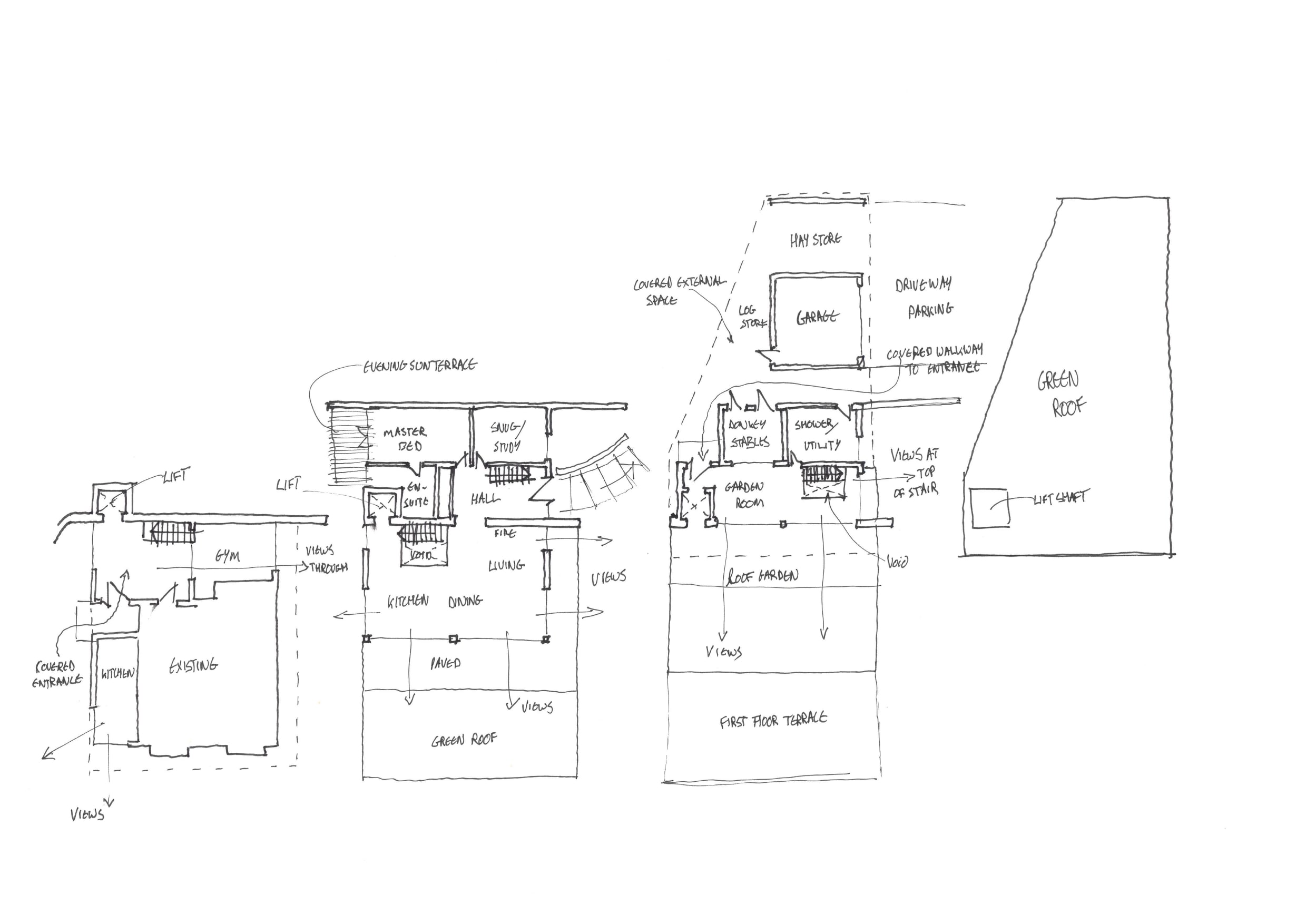
Thorntrees isn't just a house on a hill. Well.... it is, but it's also a slice of rural paradise where modern family life sits naturally within five acres of rolling pasture, complete with rare breed goats and miniature Mediterranean donkeys.

Because the hamster and dog weren't very good at managing those five acres.

Location

North Derbyshire

Status

Under Construction

Client

Private Client

Services

Architectural Design

Planning

3D Visualisation

Area

3,050 sqft

Designed for Living.

Not Just for Looking.

Any good designer will tell you they've created something that "responds to the site" and "works in harmony with the landscape." We'd join that chorus, but we just built something that made sense on a hill.

The design steps down the natural hillside, creating terraces that follow the land's own logic. Each level reveals new views across the countryside while providing practical access for everything from morning animal feeds to a glass of vino on the sunset terrace.

The roofs themselves become private gardens—some stretching toward distant hills for those panoramic moments, others tucked into intimate nooks where neighbors can't judge your weekend loungewear. Outdoor living with multiple escape routes.

The architecture balances sleek contemporary lines with unashamedly modern materials: composite timber cladding that stays looking sharp without the maintenance headache and cost, Equitone cement panels for crisp modern edges, aluminium extrusions that catch the light just right, and Gabion walls of proper local stone—because at least something should be from around here. Living spaces flow between levels, creating distinct zones for family gatherings, quiet retreats, and entertaining that starts in the kitchen and migrates across multiple terraces.

Sustainable by Design. Approved by Planning.

Getting planning permission for countryside sites isn't just about having a nice design—it's about proving genuine need and sustainable benefit.

Thorntrees ticks every box the National Planning Policy Framework demands: economic support for local rural businesses (those goats aren't going to buy their own feed), social benefits through sustainable rural living, and environmental advantages through thoughtful land stewardship. "We want to live in the country" becomes surprisingly compelling when backed by proper sustainable development arguments.

Say what you will about the planning system, but it has a soft spot for logic when it's properly presented.

Want to see more?

Explore more of our innovative and sustainable architectural projects.

Ready To Talk?

How it works (Because "get in touch" shouldn't feel like a leap of faith)

01. Talk One conversation to understand your project, your budget, and whether we're the right fit. No obligation. No sales pitch.

02. Design Everything built around your brief. We sketch, develop, and refine — with check-ins before anything is fixed. You stay in control without getting buried in the detail.

03. Deliver Through planning, building regs, and into construction. We handle the process. You make the decisions that matter.

Get in touch today