Stonecroft

A countryside house our clients always wanted, with none of the compromises they thought they'd have to make.

2022
Private Residential

Just picture this: your kids have their own spaces, you've got room to work from home, and guests aren't sleeping on the sofa bed anymore. When your house stops working for your life, sometimes the smartest move is staying put and building exactly what you need.

Brief

The family came to us with a question; “Do we stay and reimagine what’s here - or sell and start again somewhere else?” They wanted a home that could evolve with their lifestyle or attract a discerning buyer if they chose to move. Nothing over-designed, but something with clarity, space and longevity. A layout that made family life easier - and genuinely enjoyable.

Location

Nottinghamshire

Status

Planning Approved

Client

Private Client

Services

Architectural Design

Planning

3D Visualisation

Area

3,050 sqft

The Design

A home designed to support modern family life - making its presence felt, not flaunted.

Sitting within the Nottinghamshire greenbelt, the site comes with its own set of planning challenges. But we saw an opportunity to go beyond policy restrictions by presenting a design that was ambitious yet contextually grounded.

The design channels the clean, functional structure of agricultural buildings — restrained in form but confident in presence. Narrow vertical timber cladding, standing seam zinc roofing, and open joint detailing keep the aesthetic sharp but rooted. Rather than mimic rural vernacular, the house feels naturally at home in its setting.

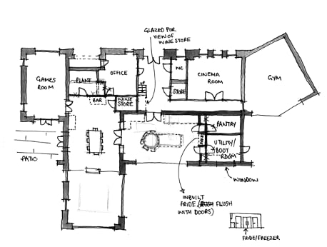
Internally, the plan opens up: a central, open-plan kitchen with a butler’s pantry, library, gym, two home offices, games room, and ample storage. Each bedroom is spacious, with its own en-suite or dressing area. A detached triple garage completes the arrangement.

The Planning

Stonecroft’s approval wasn’t guaranteed. Achieving a significant uplift in scale on a green belt site is always a challenge. But with a clear strategy, visual sensitivity and high-quality design, the application moved through planning without resistance. On a site where constraints often outweigh opportunity, that’s no small win.

It’s a rare result - but one that emphasizes the impact of clarity and preparation.

What Made It Work

- The new dwelling respects local character without resorting to pastiche

- The layout and amenity spaces directly respond to family needs—practical, generous, and flexible.

- Design decisions were guided by future value as much as present-day comfort.

- The visual story told through drawings and 3D imagery was key to communicating intent - and getting planning over the line.

Floorplans
Client Feedback

"JSA have been very friendly and helped us throughout the entire process. They assisted with creating our designs, offered ideas we hadn’t even thought of, and guided us through the complex planning and building stages."

Want to see more?

Explore more of our innovative and sustainable architectural projects.

Ready To Talk?

How it works (Because "get in touch" shouldn't feel like a leap of faith)

01. Talk One conversation to understand your project, your budget, and whether we're the right fit. No obligation. No sales pitch.

02. Design Everything built around your brief. We sketch, develop, and refine — with check-ins before anything is fixed. You stay in control without getting buried in the detail.

03. Deliver Through planning, building regs, and into construction. We handle the process. You make the decisions that matter.

Get in touch today