Project Complete: Victorian Townhouse Extension, Sutton Coldfield

We've completed a contemporary extension to a Victorian townhouse in Sutton Coldfield's conservation area, adjacent to Sutton Park's historic town gate. Despite Article 4 restrictions and conservation controls, we delivered a modern kitchen, dining, and living space with full-height glass corner doors that transforms how the family lives and connects with their garden.

Conservation areas exist to preserve the special architectural and historic character of a location. In Sutton Coldfield, particularly around Sutton Park, these controls are taken seriously. Article 4 directions add another layer, removing permitted development rights that would normally allow certain alterations without planning permission.

What does this mean in practice? Everything from window replacements to extensions requires planning approval. Conservation officers scrutinize proposals to ensure they respect the building's historic significance and the wider streetscape character.

The key to success in conservation areas isn't designing something apologetic—it's understanding the hierarchy of the building. Victorian townhouses were designed to impress from the street. The front elevation is sacred. The rear? That's where you have room to be contemporary. By respecting this distinction, we created a genuinely modern extension that conservation officers supported because it preserves what matters: the historic street frontage.

Solving the Victorian Townhouse Extension Challenge

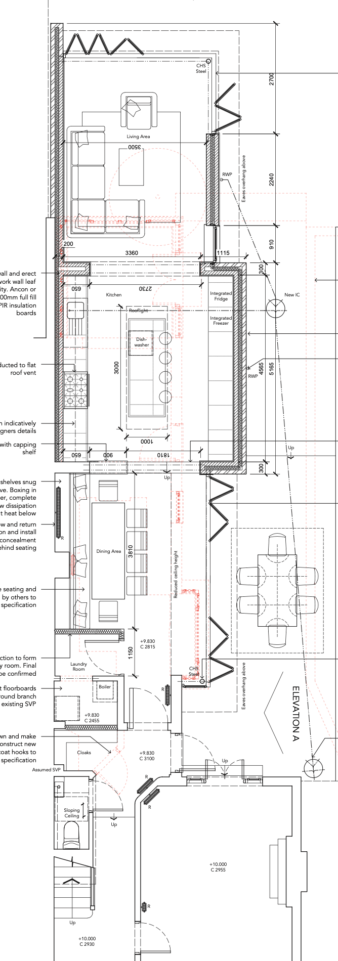
Victorian terraced townhouses present a specific design problem: they're narrow. Typically 5-6 meters wide, these proportions were fine for parlours and sculleries but feel cramped for open-plan family living.

Extending backwards is the obvious solution, but it creates challenges. How do you avoid a long, dark corridor effect? How do you make a narrow space feel generous? The answer lies in light, sightlines, and spatial flow.

For this Sutton Coldfield project, we designed full-height glass corner doors that do several jobs at once. They flood the extension with natural light from two directions, eliminating the gloom that plagues rear extensions. They create a visual connection to the garden that extends the perceived space beyond the physical walls. And they turn what could feel like a narrow galley into a light-filled pavilion.

The new extension houses the kitchen, dining area, and living space as one cohesive zone. No more chopped-up rooms fighting for space—just a functional family area that works for modern life while sitting comfortably alongside the Victorian front of house.

For homeowners in Sutton Coldfield, Four Oaks, and surrounding conservation areas, this project demonstrates that period properties can be sensitively modernized without compromising their character or falling foul of planning restrictions.

Ready To Talk?

How it works (Because "get in touch" shouldn't feel like a leap of faith)

01. Talk One conversation to understand your project, your budget, and whether we're the right fit. No obligation. No sales pitch.

02. Design Everything built around your brief. We sketch, develop, and refine — with check-ins before anything is fixed. You stay in control without getting buried in the detail.

03. Deliver Through planning, building regs, and into construction. We handle the process. You make the decisions that matter.

Get in touch today